Tournois.nl maakt gebruik van cookies. Door deze website te blijven gebruiken gaat u hiermee akkoord.
Cookie-instellingenOmschrijving
Bent u op zoek naar een recreatiewoning op korte afstand van het strand, de zee en het centrum van Breskens? Dan is deze woning zeker een bezichtiging waard. Op recreatiepark Scheldeveste, gelegen aan de prachtige Zeeuws-Vlaamse kust, vindt u deze ruime vrijstaande recreatiewoning (type Zwin) met onder andere 3 slaapkamers, een ruim terras, en een zonnige woonkamer op een royaal perceel van 447 m² eigen grond.
De locatie is ideaal: op slechts een paar minuten wandelen van de duinen, zee en het strand. In de directe omgeving vindt u het fiets- en voetveer naar Vlissingen en het sfeervolle centrum van Breskens, waar u kunt genieten van een breed scala aan winkels, terrasjes en restaurants.
Begane grond:
Bij binnenkomst treft u een ruime hal met toegang tot een toiletruimte en de trap naar de eerste verdieping. De lichte woonkamer met openslaande deuren naar de achtertuin zorgt voor veel lichtinval. De open keuken is volledig uitgerust met inbouwapparatuur, zoals een inductiekookplaat (2024), afzuigkap (2024), combi-oven, koelkast (2024) en vaatwasser. Daarnaast beschikt de woning over een praktische berging die via buiten bereikbaar is.
Verdieping:
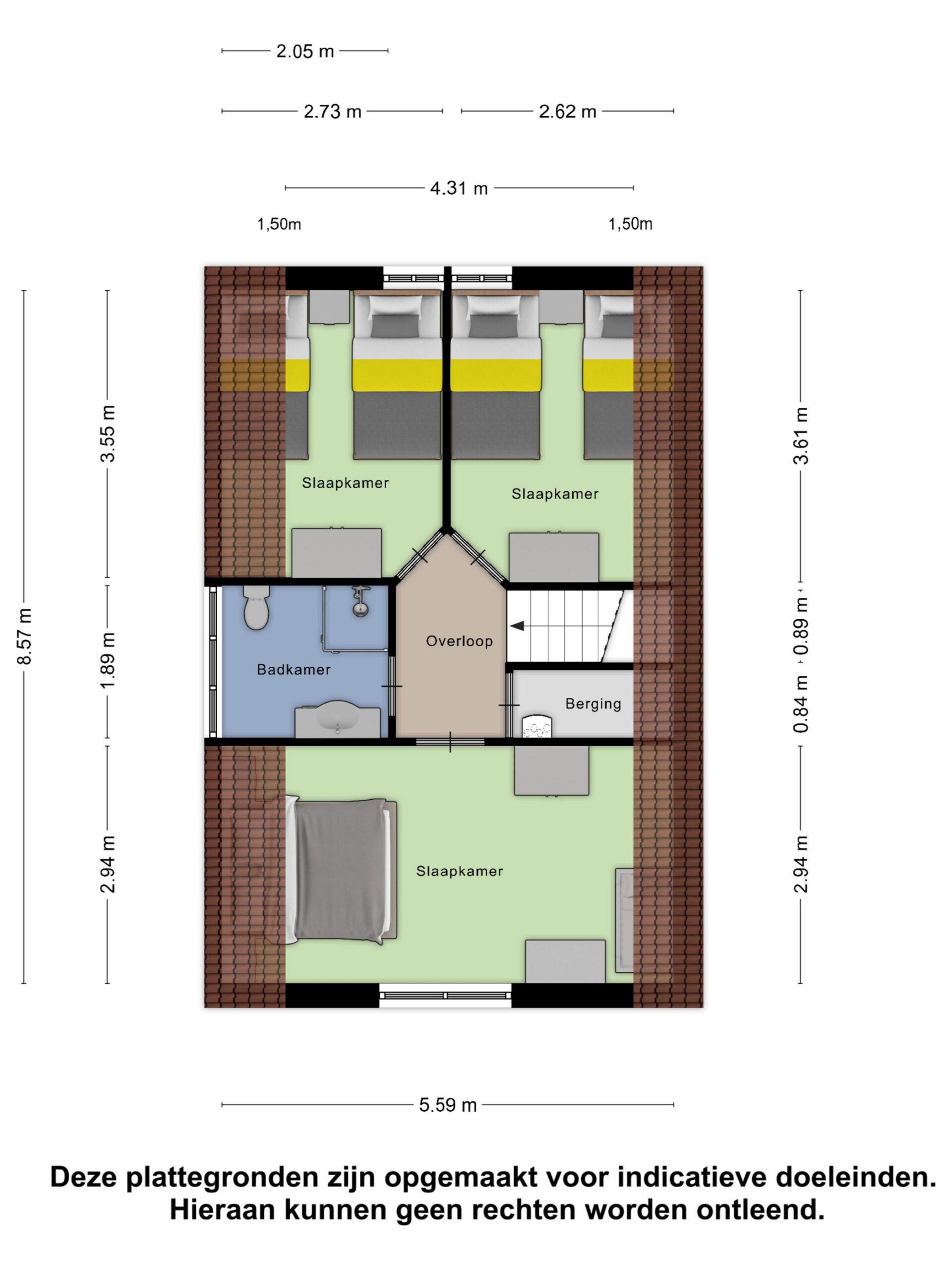
Op de eerste verdieping bevinden zich drie comfortabele slaapkamers. De badkamer is voorzien van een douche, wastafelmeubel en toilet. Tevens is er op deze verdieping een extra bergruimte aanwezig.
Tuin:
De ruime, onderhoudsvriendelijke achtertuin is gelegen op het zuiden en beschikt over een afsluitbaar terras welke beschikt over zonnewering, ideaal voor het creëren van een gezellige zithoek. De woning heeft daarnaast een eigen parkeerplaats op het perceel met ruimte voor twee auto’s.
Bouwjaar: 1998
Kozijnen: houten kozijnen met dubbel glas
Verwarming: cv-ketel uit 2015
Bijzonderheden:
* Recreatiepark Scheldeveste is gunstig gelegen, direct aan de duinen, zee en strand op loopafstand van het fiets-/voetveer naar Vlissingen en het gezellige centrum van Breskens met diverse winkels, terrasjes en restaurants;
* koelkast, kookplaat en afzuigkap in 2024 vernieuwd;
* voldoende ruimte op de oprit om 2 auto’s te parkeren;
* ruime achtertuin op het zuiden;
* gemeubileerd en gestoffeerd aangeboden;
* de woning wordt recreatief verhuurd, vraag ons naar de voorwaarden;
* parkkosten 2025 € 1.748,43 per jaar, hierin o.a. vrije toegang tot het zwembad.
* energielabel C.
Overdracht
- Vraagprijs € 379.000,- k.k.
- Status Beschikbaar
- Aanvaarding In overleg
Bouw
- Soort woonhuis Vrijstaande woning
- Soort bouw Bestaande bouw
- Bouwjaar 1998
- Specifiek Gestoffeerd, gemeubileerd
- Soort dak Zadeldak
Oppervlakten en inhoud
- Wonen 88 m2
- Overige inpandige ruimte 6m2
- Perceel 447m2
- Inhoud 345m3
Indeling
- Aantal kamers 4 kamers
- Aantal badkamers 1 badkamer
- Badkamervoorzieningen Toilet, douche, wastafelmeubel
- Aantal woonlagen 2 woonlagen
- Voorzieningen Buitenzonwering
Energie
- Energielabel C
- Isolatie Dubbel glas, volledig geisoleerd
- Verwarming Cv ketel
- Warm water Cv ketel
Kadastrale gegevens
- Eigendomssituatie Volle eigendom
Buitenruimte
- Ligging Aan park, aan rustige weg
- Tuin Achtertuin
- Ligging tuin Aan park, aan rustige weg
- Soort berging Inpandig
Garage
- Soort garage Geen garage
Virtuele tours
Plattegronden


