Tournois.nl maakt gebruik van cookies. Door deze website te blijven gebruiken gaat u hiermee akkoord.
Cookie-instellingenOmschrijving
Op TOPLOCATIE aan de rand van vakantiepark Scheldeveste, in EERSTE lijn met het strand en de duinen, bieden wij u deze ruime vrijstaande vakantiewoning (type Zwin) aan. De woning is gelegen op een royaal perceel van 452 m² eigen grond en beschikt onder meer over een lichte woonkamer met open keuken, drie slaapkamers en een onderhoudsvriendelijke tuin rondom. Een bijzonder pluspunt: de woning is nooit verhuurd geweest.
De woning is gunstig gelegen op strandpark Scheldeveste op zeer korte afstand van de duinen, zee en strand, fiets-/voetveer naar Vlissingen en het gezellige centrum van Breskens met diverse winkels, terrasjes en restaurants.
Begane grond:
U betreedt de woning via een hal met toegang tot toiletruimte. De ruime, sfeervolle woonkamer met een opslaande deur naar de tuin biedt veel lichtinval. De open keuken is voorzien van inbouwapparatuur, waaronder een inductie kookplaat, afzuigkap, combi-oven, magnetron, koelkast, vriezer en vaatwasser. Daarnaast beschikt de woning over een praktische berging die via buiten bereikbaar is met een wasmachine, droger en een tweede koelkast.
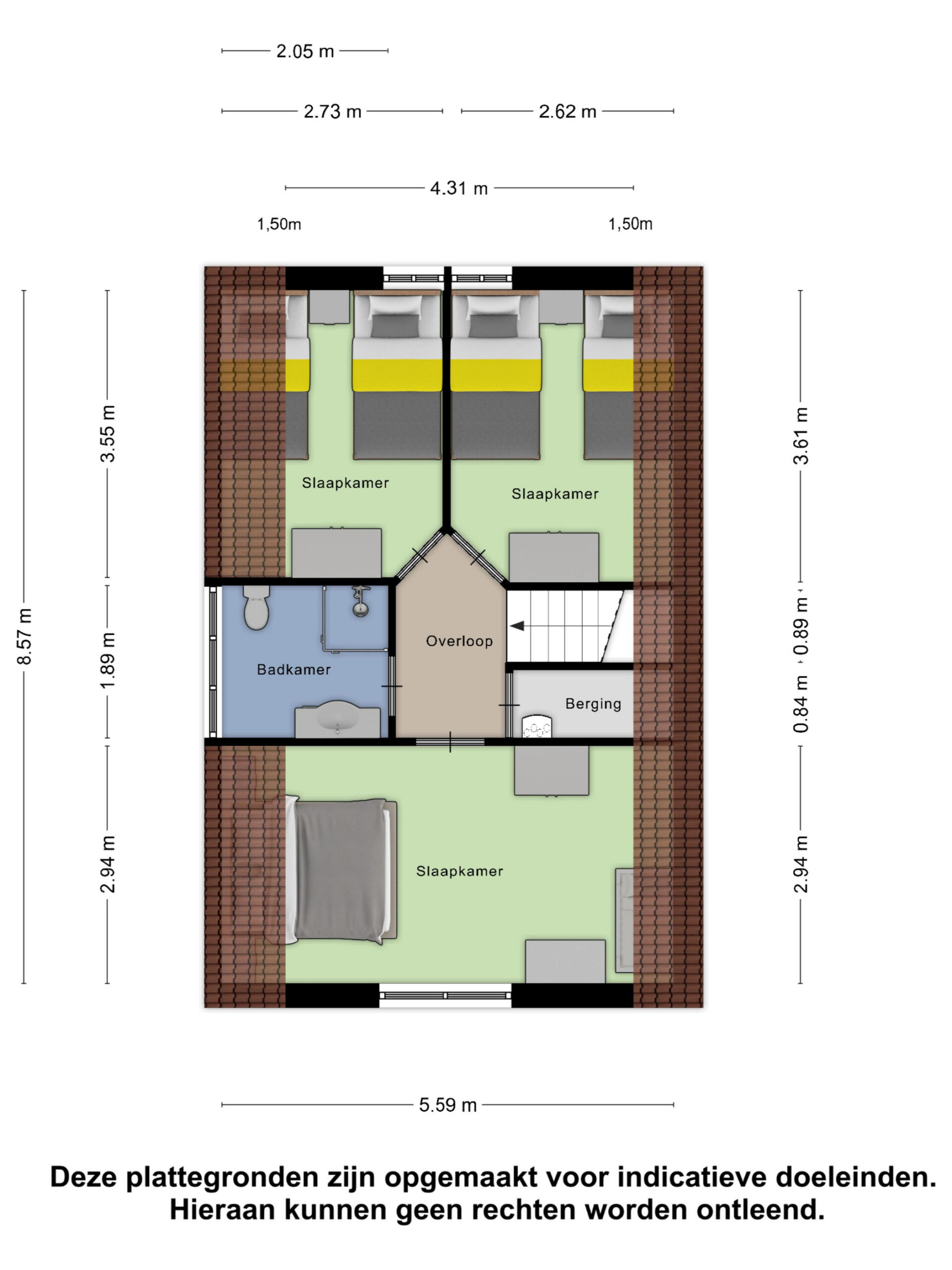
Verdieping
Op de eerste verdieping bevinden zich drie comfortabele slaapkamers en een nette badkamer, voorzien van een douche, toilet en wastafel. Tevens is er een extra bergruimte aanwezig.
Tuin
De ruime, zonnige achtertuin is gelegen op het noorden en biedt uitzicht op de duinen. De tuin beschikt over een overkapping en een royaal terras, perfect voor een gezellige zit- en eethoek. Daarnaast is er een tuinhuis aanwezig en beschikt de woning over een eigen parkeergelegenheid op het perceel.
Bouwjaar: 1998
Kozijnen: houten kozijnen met dubbel glas
Verwarming: cv-ketel
Bijzonderheden:
* gelegen op een toplocatie en in eerste lijn met het strand en de duinen;
* de zonnige achtertuin is gelegen op het noorden en beschikt over en overkapping;
* Berging met wasmachine, droger en tweede koelkast;
* De woning wordt gestoffeerd en gemeubileerd aangeboden;
* De woning wordt niet recreatie verhuurd, vraag ons naar de mogelijkheden;
* Parkkosten 2025 € 1.748,43 per jaar, hierin o.a. vrije toegang tot het zwembad;
* Energielabel C.
Overdracht
- Vraagprijs € 475.000,- k.k.
- Status Beschikbaar
- Aanvaarding In overleg
Bouw
- Soort woonhuis Vrijstaande woning
- Soort bouw Bestaande bouw
- Bouwjaar 1998
- Specifiek Gestoffeerd, gemeubileerd
- Soort dak Zadeldak
Oppervlakten en inhoud
- Wonen 88 m2
- Overige inpandige ruimte 6m2
- Perceel 452m2
- Inhoud 345m3
Indeling
- Aantal kamers 4 kamers
- Aantal badkamers 1 badkamer
- Badkamervoorzieningen Toilet, douche, wastafel
- Aantal woonlagen 2 woonlagen
Energie
- Energielabel C
- Isolatie Dubbel glas, volledig geisoleerd
- Verwarming Cv ketel
- Warm water Cv ketel
Kadastrale gegevens
- Eigendomssituatie Volle eigendom
Buitenruimte
- Ligging Aan park, aan rustige weg
- Tuin Tuin rondom
- Ligging tuin Aan park, aan rustige weg
- Soort berging Inpandig
Garage
- Soort garage Geen garage
Plattegronden


