Tournois.nl maakt gebruik van cookies. Door deze website te blijven gebruiken gaat u hiermee akkoord.
Cookie-instellingenOmschrijving
Nieuwbouw appartementen PHAROS RESIDENCE II Breskens
Leven bij het water.
Zoals een vuurtoren de toegang van een haven aanduidt, zo markeert PHAROS RESIDENCE de entree van Breskens. Gelegen op de kop van de Haven Westzijde manifesteren drie appartementengebouwen zich als een elegant en markant geheel.
Wonen op een steenworp afstand van Breskens, op een heerlijk rustige plek. Geniet van een verfrissende wandeling op het strand, met het steeds wisselende beeld van de Westerschelde en de Noordzee. De meest indrukwekkende schepen varen bij u langs en bij helder weer heeft u een ongekend ver uitzicht over het water, Vlissingen en de (bij eb droogvallende) zandbanken waar met grote regelmaat zeehonden liggen te zonnen.
Wonen in PHAROS RESIDENCE is een buitenkans! Het biedt u het optimale woonklimaat, rust en luxe, te midden van de veelzijdigheid en dynamiek van de Zeeuws-Vlaamse kust.
Puur Breskens op een historische plek, dat is wonen in PHAROS RESIDENCE.
De Haven Westzijde in Breskens ondergaat een ware metamorfose. Vroeger losten vrachtschepen hier hun lading. Nu wordt het gebied een fantastische plek om te wonen en te recreëren, op slechts een zucht van de zee en het levendige centrum van Breskens.
PHAROS RESIDENCE past bij de grootsheid en ruimte van de Noordzee en de Westerschelde. Als een baken in de zee… als een vuurtoren. De schitterende appartementen zijn voorzien van veel glas en riante terrassen, met op de bovenste verdieping enkele penthouses. Hier kunt u op elk moment van de dag genieten van de zon én zicht op het water.
Zoekt u een bijzonder appartement aan zee, in een bedrijvig en gezellig dorp, gelegen dichtbij de jachthaven? Ontdek dan hier PHAROS RESIDENCE!
In PHAROS RESIDENCE bevinden zich 159 appartementen verdeeld over 3 blokken in verschillende groote en indelingen.
Pharos I   omvat 39 appartementen
Pharos II  omvat 57 appartementen
Pharos III omvat 63 appartementen
Er is keuze uit diverse type appartementen: 
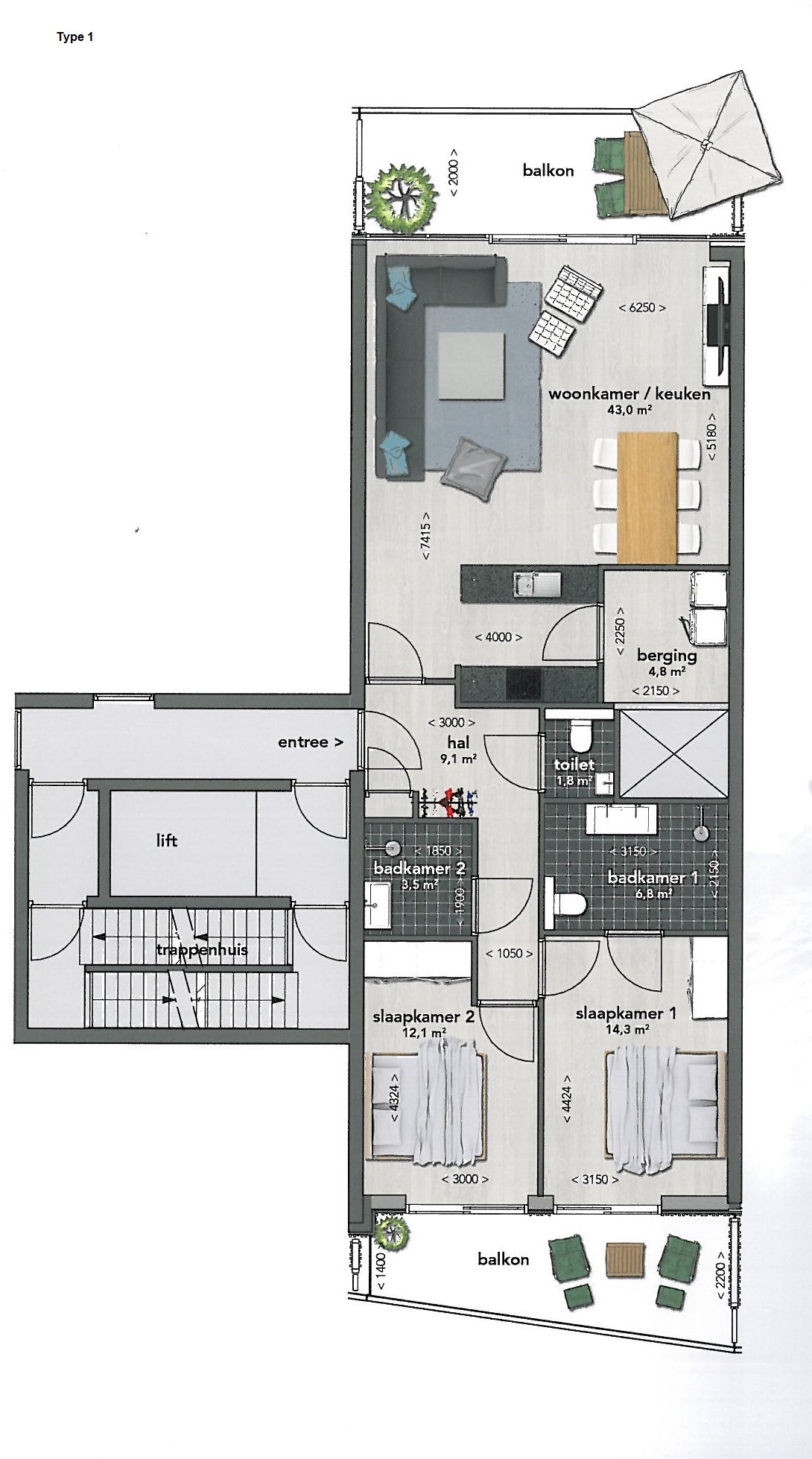
Type 1 gelegen aan zee- en havenzijde met 2 slaapkamers
Type 2 gelegen aan havenzijde, met 2 slaapkamers
Type 3 gelegen aan zeezijde, met 3 slaapkamers
Type 4 gelegen aan zee- en havenzijde, met 4 slaapkamers
Type 5 gelegen aan zee- en havenzijde, met 3 slaapkamers
De appartementen zijn standaard voorzien een compleet uitgeruste eigentijdse keuken en van twee luxe afgewerkte badkamers.
Alle appartementen hebben tevens een berging en parkeerplaats.
Gebruiksoppervlakte appartementen 98 m2 t/m 159 m2
Koopaanneemsom vanaf € 428.000,–  tot € 1.124.000,–  VON inclusief BTW
Permanent wonen in Pharos Residence is vanzelfsprekend fantastisch. Wilt u echter uw appartement verhuren voor de recreatie, dan is de professionele verhuurorganisatie daarvoor uw geschikte partner. Zo geniet u van de verhuuropbrengsten wanneer u zelf geen gebruik maakt van uw appartement.
Alle appartementen zijn inmiddels verkocht. Wenst u meer informatie over de nieuwe fase in de herontwikkeling van het havengebied genaamd “Beaufort Breskens”? Neem dan vrijblijvend contact op voor meer informatie!
Overdracht
- Vraagprijs geen prijs
- Status Beschikbaar
- Aanvaarding In overleg
Bouw
- Soort bouw Nieuwbouw
- Bouwjaar 2020
- Soort dak Plat dak
Oppervlakten en inhoud
- Wonen 98 m2
Indeling
- Aantal kamers 3 kamers
- Aantal woonlagen 1 woonlagen
Energie
- Verwarming Warmtepomp
Kadastrale gegevens
Buitenruimte
- Tuin Zonneterras
- Soort berging Inpandig
Garage
- Soort garage Parkeerplaats
 
                 
                                     
                                     
                                     
                                     
                                     
                                     
                                     
                                     
                                     
                                     
                                     
                                     
                                     
                 
         
        