Tournois.nl maakt gebruik van cookies. Door deze website te blijven gebruiken gaat u hiermee akkoord.
Cookie-instellingenOmschrijving
Bent u opzoek naar een recreatiewoning op loopafstand van de zee? Op “buitenplaats De Paarlhof” bieden wij dit mooie chalet met een woonoppervlakte van 46m2 aan op een perceel van 300 m2. Het chalet is o.a. voorzien van een nette pvc-vloer (2023), 2 slaapkamers, een ruime woonkamer met open keuken en een royale achtertuin.
Indeling:
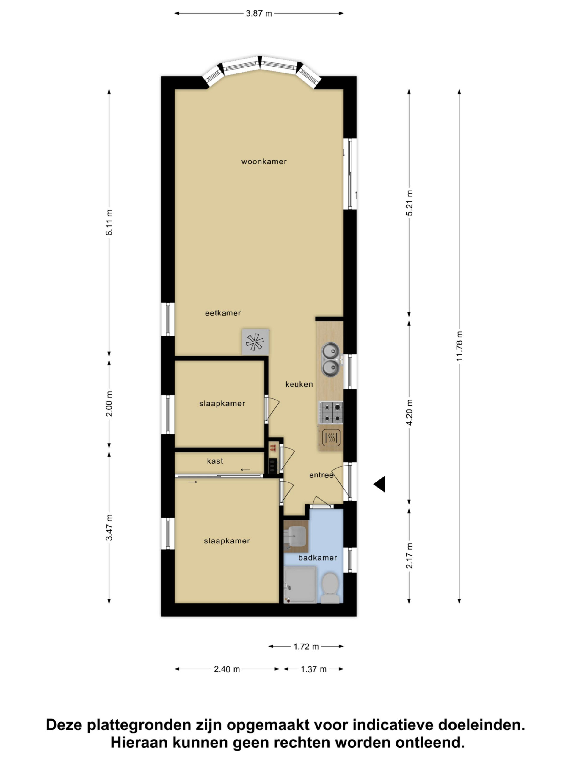
Bij binnenkomst treft u de hal die toegang biedt tot de verschillende vertrekken van dit chalet. De ruime woonkamer is voorzien van grote raampartijen en een schuifpui die leidt naar de tuin, waardoor u overdag heerlijk kunt genieten van de zon. Aangrenzend aan de woonkamer treft u de open keuken die is voorzien van een 4-pits gasfornuis, afzuigkap, combi-oven en een koelkast. De badkamer beschikt over een douche, een wastafelmeubel en een toilet. Verder treft u in het chalet nog twee ruime slaapkamers, waarvan één slaapkamer is voorzien van vaste kastruimte.
Tuin:
De ruime onderhoudsvriendelijke tuin aan de achterzijde van het chalet beschikt over een tuinhuis en een mooi terras, waar u een gezellige zit- en/of eethoek kan creëren. Daarnaast beschikt het chalet ook over eigen parkeervoorziening.
Bouwjaar: 2000
Kozijnen: kunststof met dubbelglas
Verwarming: Cv-ketel 2021
Bijzonderheden:
* het chalet is voorzien van eigen parkeervoorziening;
* dit park is eigendom van de gezamenlijke eigenaren en wordt beheerd middels een VVE;
* servicekosten ca. € 138,– per maand (inclusief voorschot energie);
* gemeubileerd en gestoffeerd aangeboden;
* het chalet wordt niet recreatief verhuurd wel goede mogelijkheden hiervoor;
* in 2021 is de cv-ketel vernieuwd;
* de douche is vernieuwd in 2023;
* energielabel C.
Overdracht
- Vraagprijs € 218.000,- k.k.
- Status Beschikbaar
- Aanvaarding In overleg
Bouw
- Soort woonhuis Vrijstaande woning
- Soort bouw Bestaande bouw
- Bouwjaar 2000
- Specifiek Gestoffeerd, gemeubileerd
- Soort dak Zadeldak
Oppervlakten en inhoud
- Wonen 46 m2
- Externe bergruimte 5m2
- Perceel 300m2
- Inhoud 153m3
Indeling
- Aantal kamers 3 kamers
- Aantal badkamers 1 badkamer
- Badkamervoorzieningen Toilet, douche, wastafelmeubel
- Aantal woonlagen 1 woonlagen
- Voorzieningen Schuifpui
Energie
- Energielabel C
- Isolatie Dubbel glas, volledig geisoleerd
- Verwarming Cv ketel
- Warm water Cv ketel
Kadastrale gegevens
- Eigendomssituatie Volle eigendom
Buitenruimte
- Ligging Aan park, aan rustige weg
- Tuin Achtertuin
- Ligging tuin Aan park, aan rustige weg
- Soort berging Vrijstaand hout
Garage
- Soort garage Geen garage
Virtuele tours
Plattegronden

