Tournois.nl maakt gebruik van cookies. Door deze website te blijven gebruiken gaat u hiermee akkoord.
Cookie-instellingenOmschrijving
Sfeervolle recreatiewoning op loopafstand van strand en zee – Schoneveld 163, Breskens
Bent u op zoek naar een vakantiewoning op een rustige locatie, op loopafstand van strand en zee? Dan is Schoneveld 163 in Breskens wellicht precies wat u zoekt. Deze sfeervolle vier-onder-een-kap recreatiewoning (type Duinroos), gelegen op een perceel van 157 m² eigen grond, biedt het comfort en de ligging die ideaal zijn voor ontspanning aan de Zeeuwse kust.
De gunstige ligging nabij de uitgestrekte stranden en het levendige centrum van Breskens, gecombineerd met een nette afwerking en een praktische indeling, maken deze woning uitermate geschikt als tweede woning of investeringsobject voor recreatieve verhuur.
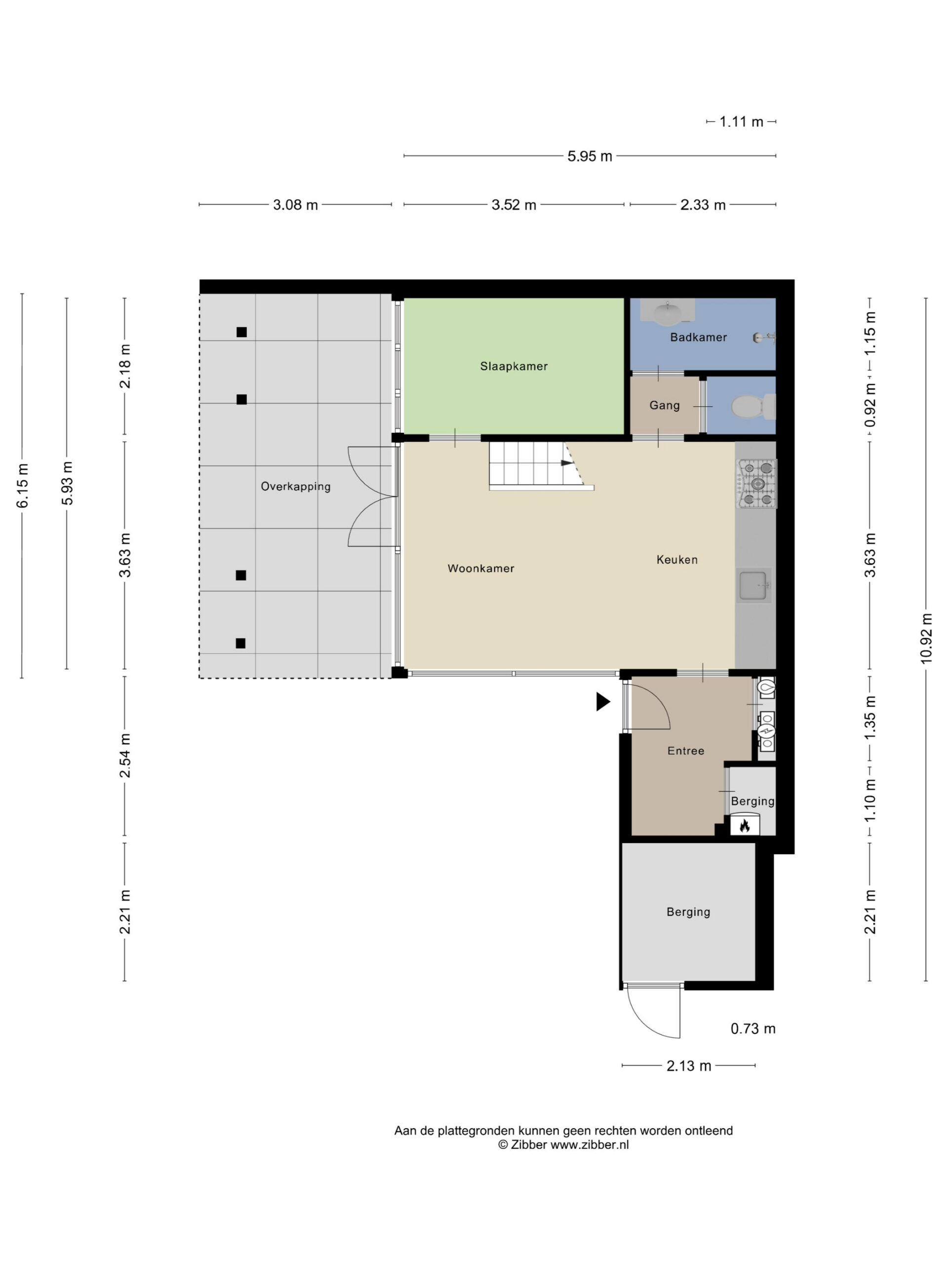
Indeling:
Entree in de hal met toegang tot de lichte woonkamer met openslaande tuindeuren naar de zonnige tuin. De open keuken (2018) is voorzien van diverse inbouwapparatuur, waaronder een gaskookplaat, afzuigkap, koelkast en vaatwasser. Verder beschikt de begane grond nog over een slaapkamer, toiletruimte en de badkamer met douche en wastafel.
Eerste verdieping:
Via de trap in de woonkamer bereikt u de overloop met vide. Hier bevinden zich de ruime overloop en een slaapkamer met dakraam.
Buitenruimte
De woning beschikt over een verzorgde, zonnige tuin met een oostelijke ligging. Onder de ruime overkapping geniet u beschut van het buitenleven, ongeacht het seizoen. Parkeren kan gemakkelijk op eigen terrein. Een aangebouwde berging biedt praktische opbergruimte voor fietsen, tuinmeubilair of strandspullen.
Bouwjaar: 1989
Verwarming: cv-ketel uit 2021
Kozijnen: houten kozijnen met dubbel glas 
Bijzonderheden:
* zonnige tuin met royale overkapping;
* woonkamer met openslaande tuindeuren;
* gestoffeerd en gemeubileerd aangeboden;
* de woning wordt recreatief verhuurd, vraag ons naar de voorwaarden;
* parkkosten 2025 € 848,72;
* energielabel C.
Vakantiepark Schoneveld is gelegen aan één van de schoonste stranden van Nederland. Op loopafstand vindt u twee moderne strandpaviljoens. Het centrum van Breskens ligt op korte afstand en biedt voorzieningen zoals winkels, restaurants, een jachthaven en openbaar vervoer. Een perfecte locatie voor wie houdt van zee, natuur en comfort.
Overdracht
- Vraagprijs € 232.500,- k.k.
- Status Beschikbaar
- Aanvaarding In overleg
Bouw
- Soort woonhuis Twee onder een kapwoning
- Soort bouw Bestaande bouw
- Bouwjaar 1989
- Specifiek Gestoffeerd, gemeubileerd
Oppervlakten en inhoud
- Wonen 60 m2
- Externe bergruimte 5m2
- Perceel 157m2
- Inhoud 206m3
Indeling
- Aantal kamers 3 kamers
- Aantal badkamers 1 badkamer
- Badkamervoorzieningen Douche, wastafelmeubel
- Aantal woonlagen 2 woonlagen
Energie
- Energielabel C
- Isolatie Dubbel glas
- Verwarming Cv ketel
- Warm water Cv ketel
Kadastrale gegevens
- Eigendomssituatie Volle eigendom
Buitenruimte
- Ligging Aan park, aan rustige weg
- Tuin Voortuin, zijtuin
- Ligging tuin Aan park, aan rustige weg
- Soort berging Aangebouwd hout
Garage
- Soort garage Geen garage
Plattegronden
 
                         
                         
                         
                 
                                     
                                     
                                     
                                     
                                     
                                     
                                     
                                     
                                     
                                     
                                     
                                     
                                     
                                     
                                     
                                     
                                     
                                     
                                     
                                     
                                     
                                     
                                     
                                     
                                     
                                     
                                     
                 
         
        