Alle foto’s (36)
Beschikbaar
Hoofdplaat

Westlangeweg 1-A 191

  • 87 m²
  • 322 m²
  • 3 slaapkamers
€ 235.000,- kosten koper
Omschrijving

Vrijstaande recreatiewoning met riant terras op toplocatie aan de Westerschelde!

Gelegen op een unieke plek aan de rand van vakantiepark Village Scaldia in Hoofdplaat, vindt u deze sfeervolle recreatiewoning met royaal terras en balkon, op een perceel van 322 m² eigen grond. De woning beschikt over een lichte woonkamer met open keuken, drie ruime slaapkamers, een nette badkamer en volop buitenruimte om te genieten van rust, zon en zee.

Deze woning is ideaal voor wie op zoek is naar een tweede woning met een prachtig uitzicht en op loopafstand van de Westerschelde.

Indeling:
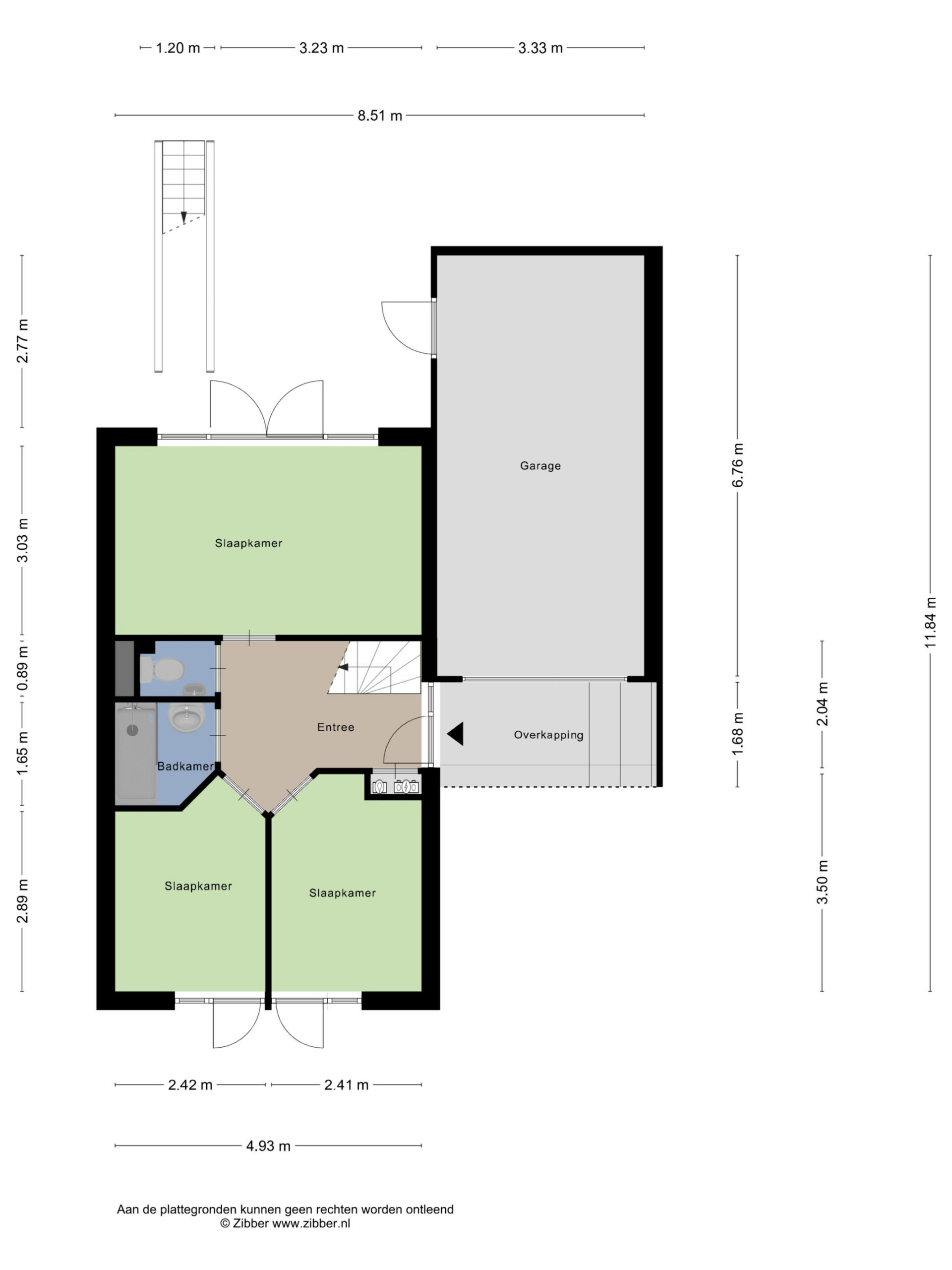
Via de entree betreedt u de hal met toegang tot drie ruime slaapkamers. Eén van de slaapkamers beschikt over openslaande deuren naar de tuin, waardoor u hier direct in alle rust van de buitenlucht kunt genieten. De nette badkamer is voorzien van een ligbad, wastafelmeubel en radiator. Tevens is er een aparte toiletruimte.

Eerste verdieping:
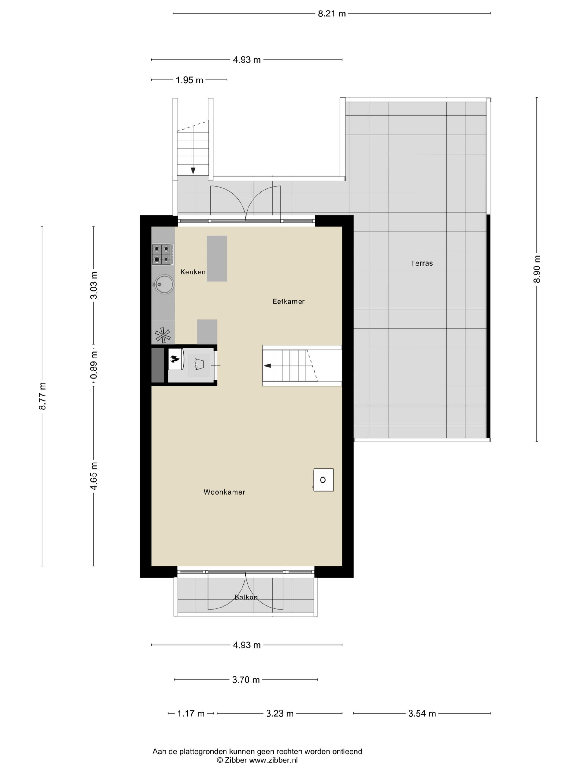
De open trap in de hal leidt naar de lichte en ruime leefverdieping. Hier bevinden zich de woonkamer, eetkamer en open keuken in één royale ruimte. De keuken is ingericht met diverse inbouwapparatuur, zoals een koelkast met vriesvak, kookplaat, oven, afzuigkap, vaatwasser en spoelbak. Dankzij de grote raampartijen en de openslaande deuren naar zowel het balkon als het riante terras, voelt deze verdieping bijzonder ruim en licht aan. Het terras aan de achterzijde is ideaal gesitueerd voor lange zomeravonden in de zon.

Buitenruimte:
De woning beschikt over een ruime achtertuin met vrij uitzicht op het omliggende groen en de duinen van Hoofdplaat. Hier vindt u een groot betegeld terras en veel privacy. Aan de voorzijde van de woning bevindt zich een tweede balkon, bereikbaar via de woonkamer. Daarnaast beschikt de woning over een eigen parkeerplaats en garage met voldoende ruimte om de auto te parkeren.

Bouwjaar: 1998
Kozijnen: houten kozijnen met dubbel glas
Verwarming: Cv-ketel uit 2014

Bijzonderheden:
– Unieke ligging tegen de Zeedijk met zicht op de Westerschelde;
– Riant dakterras;
– Eigen ruime oprit met parkeergelegenheid;
– Gemeubileerd en gestoffeerd aangeboden;
– Goede verhuurmogelijkheden (niet in gebruik als verhuurobject);
– Parkkosten 2025: € 1.303,18 per jaar;
– Energielabel C;

Deze woning is perfect voor wie op zoek is naar een zorgeloze plek aan zee, met comfort, rust en ruimte. Interesse? Neem gerust contact met ons op voor meer informatie of het plannen van een bezichtiging!

Toon meer
Overdracht
  • Vraagprijs € 235.000,- k.k.
  • Status Beschikbaar
  • Aanvaarding In overleg
Bouw
  • Soort woonhuis Geschakelde woning
  • Soort bouw Bestaande bouw
  • Bouwjaar 1998
  • Soort dak Zadeldak
Oppervlakten en inhoud
  • Wonen 87 m2
  • Overige inpandige ruimte 23m2
  • Perceel 322m2
  • Inhoud 395m3
Indeling
  • Aantal kamers 4 kamers
  • Aantal badkamers 1 badkamer
  • Badkamervoorzieningen Douche, wastafel
  • Aantal woonlagen 2 woonlagen
Energie
  • Energielabel C
  • Isolatie Dubbel glas, volledig geisoleerd
  • Verwarming Cv ketel
  • Warm water Cv ketel
Kadastrale gegevens
  • Eigendomssituatie Volle eigendom
Buitenruimte
  • Ligging Aan park, aan rustige weg, vrij uitzicht, zeezicht
  • Tuin Achtertuin, voortuin
  • Ligging tuin Aan park, aan rustige weg, vrij uitzicht, zeezicht
Garage
  • Soort garage Aangebouwd hout
  • Capaciteit 1 auto
Toon meer
Plattegronden
Video

Wij helpen u graag!

Wij horen graag wat wij voor u kunnen betekenen. Laat een bericht en wij nemen telefonisch of per e-mail contact met u op. U kunt ons bereiken op + 31 11 738 5080 of via info@tournoismakelaardij.nl